0
Skip to Content
Portfolio - Justin Munjack
Work
Contact
Open Menu
Close Menu
Portfolio - Justin Munjack
Work
Contact
Open Menu
Close Menu
Work
Contact
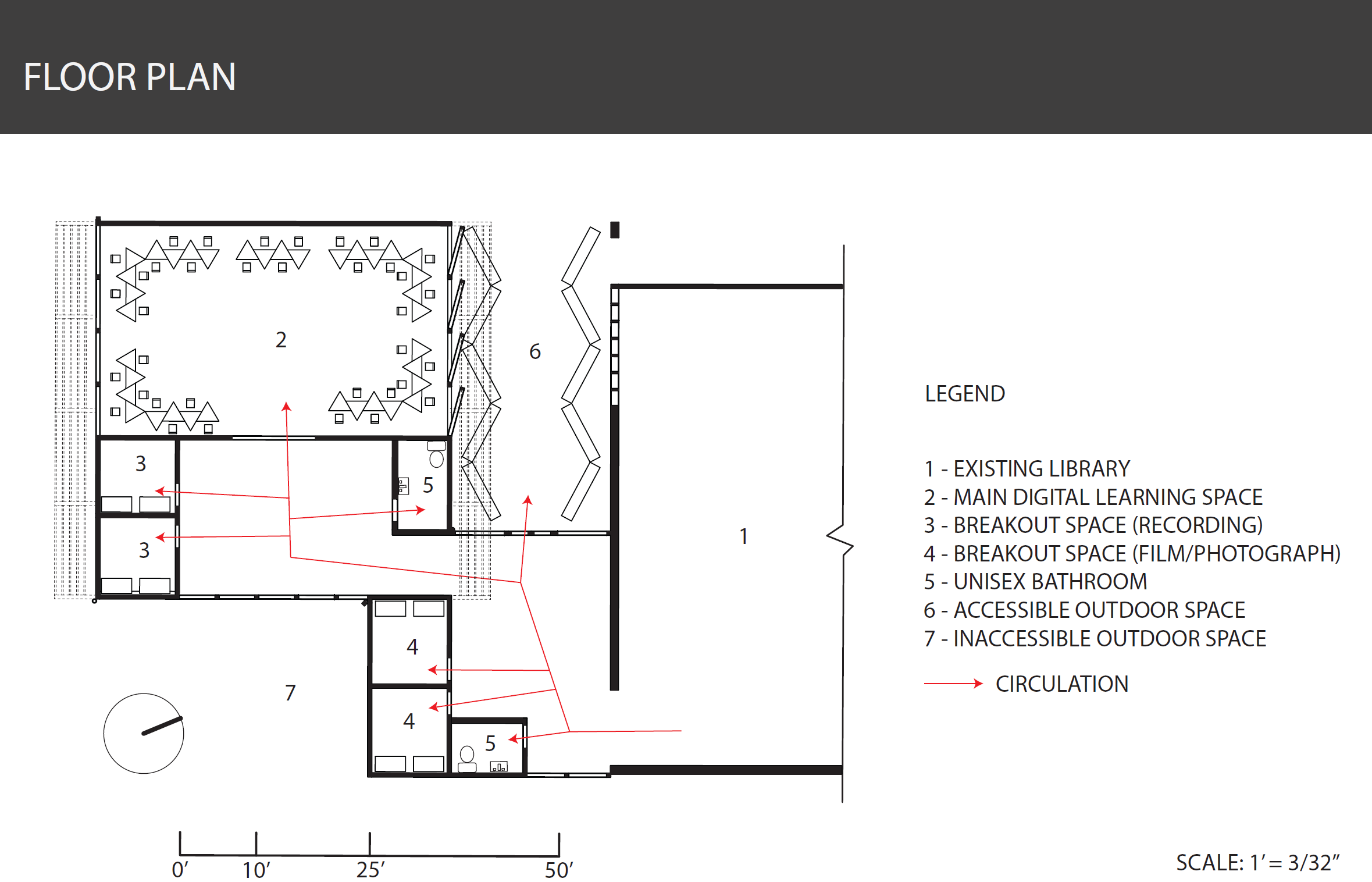
Glenside Library - Digital Media Lab Addition
Spring 2021
Previous
Previous
The Beacon
Next
Next
TUCCI